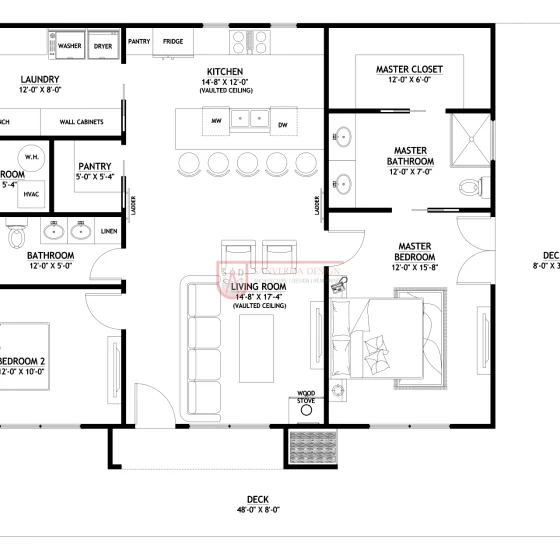
Loft 124SVD offers a harmonious combination of rustic charm and modern living, perfect for couples, small families, or those desiring a weekend retreat. Spanning 1,200 square feet, this barndominium skillfully maximizes living space, boasting an open-concept design that blends the kitchen, living room, and dining area seamlessly. Its vaulted ceilings elevate the sense of space, while a generous 800-square-foot deck extends the living area outdoors, ideal for entertaining or enjoying tranquil evenings. With convenience at its core, the main floor hosts essential living spaces, while a versatile loft area provides additional flexibility for homeowners’ needs.
The design of this barndominium emphasizes practicality and modernity. The main floor features key rooms like the kitchen and laundry room, offering updated amenities for a contemporary lifestyle. The loft, extending to 556 square feet, provides customizable space that can serve as a guest bedroom, home office, or play area. Outdoor enthusiasts will appreciate the sizeable deck, which can be personalized with outdoor furnishings and features for an enhanced living experience.
Energy efficiency is a notable design aspect, with well-insulated walls and a slab foundation that contribute to a stable, energy-saving environment. The strategic use of windows and vaulted ceilings ensures abundant natural light, reducing the dependency on artificial lighting during daylight hours. Customization options are available, allowing for alterations in layout and features, ensuring the barndominium can adapt to the changing needs of its inhabitants.
Privacy is thoughtfully designed into the layout, with bedrooms on the main floor and the loft offering secluded living space. This arrangement balances communal areas with private retreats, catering to families or individuals seeking both shared and personal spaces.
Overall, the 2 Bed 2 Bath Barndominium with Loft 124SVD delivers a delightful blend of style, function, and modern comforts. Its open-concept setup, adaptable loft, and inviting design make it an attractive choice for a primary residence or a charming retreat.








