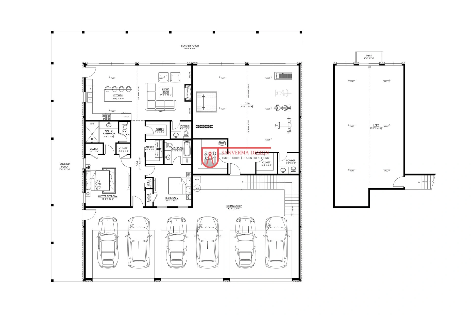
Plan 307SVD, is a prime example of modern architectural innovation, combining luxury, versatility, and practicality. It caters to homeowners who desire a unique, expansive living space that incorporates both contemporary and timeless elements. With a total living area of 3219 square feet, this plan is spacious yet maintains a sense of warmth and comfort. The design includes essential features such as two bedrooms, three bathrooms, and a remarkable six-car garage/shop, catering to car enthusiasts or individuals in need of extra storage space.
The first floor of the house spans 2385 square feet, offering an open-concept space with seamlessly integrated living, dining, and kitchen areas. This design not only maximizes space but also encourages natural light to permeate the interior, creating a bright and welcoming environment. The second floor, encompassing 834 square feet, provides additional living space that can be customized according to individual preferences. Whether it’s used as a home office, gym, or entertainment area, this flexible layout accommodates various lifestyle needs.
The house plan emphasizes a harmonious flow between different living spaces, enhancing the overall functionality and aesthetics of the home. Modern conveniences such as a well-equipped kitchen, pantry, laundry area, and loft space are thoughtfully incorporated into the design. The inclusion of a fireplace adds a cozy touch, making it an ideal spot for relaxation and social gatherings.
Constructed with a robust slab foundation and 2×6 exterior walls, the barndominium ensures durability and energy efficiency. The layout strategically places windows and skylights to maximize natural light, maintaining a bright and airy ambiance throughout the day. Moreover, the design follows sustainable practices, utilizing energy-efficient insulation and advanced HVAC systems to provide comfort and security in all seasons.
In summary, the 3200 Sqft Barndominium House Plan: 307SVD exemplifies the perfect fusion of luxury and efficiency in a modern home. Thoughtful design and planning transform this space into a sophisticated yet practical residence, offering a harmonious balance of private and communal areas that foster connection and comfort.









